01 Hauptbild

Der Campus, der zu Signau passt

Die beiden neuen Gebäude liegen wie die bestehenden Schulhäuser parallel zum Hang und sind über einen Verbindungstrakt über mehrere Geschosse miteinander verbunden. Das Untergeschoss, die Decken und bestimmte Wände sind aus Beton, die Fassade und die Dachkonstruktion aus Holz.

Im Ankunftsgebäude auf Ebene der bestehenden Schulanlage befinden sich die Tagesschule und die neue Schul- und Gemeindebibliothek. So sind die beiden öffentlichen Einrichtungen bestens erreichbar. Im Raum für die Tagesschule können die Schüler*innen u. a. ihr Mittagessen einnehmen, Hausaufgaben erledigen oder sich ausruhen.

Auf der unteren Ebene liegt das Hauptgebäude, der eigentliche Klassentrakt mit zehn Klassenzimmern und sieben Gruppenräumen. Die Korridore sind so gestaltet, dass es neben Garderoben auch Platz für Sitz- oder Arbeitsplätze hat; das ermöglicht verschiedene Lernformen.

Die Klassenzimmer und Gruppenräume verfügen über eine gute natürliche Belichtung und einen sommerlichen Wärmeschutz. Eine Fussbodenheizung mit Erdsonde und Kühlfunktion macht an heissen Sommertagen Klimaanlagen überflüssig. Gekühlt werden die Räume über die Wasserleitungen des Heizungssystems. 

Im Erdgeschoss des Klassentrakts befinden sich die beiden Kindergärten, wobei die Kindergartenkinder einen eigenen Eingang haben. Die Kindergärten teilen einen grosszügigen gemeinsamen Spielbereich und verfügen daneben über je einen eigenen Aussenraum.

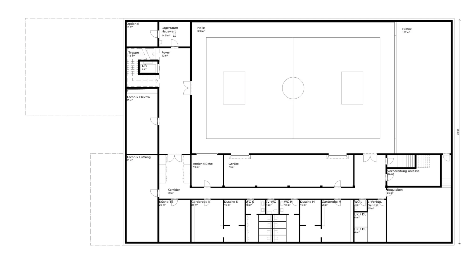
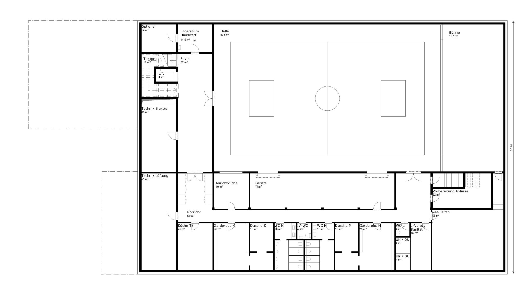
Die Turnhalle hat eine Bühne und bietet Platz für 300 Personen. Der Bühnenraum hat einen separaten Zugang und ist für die Durchführung unterschiedlicher Veranstaltungen geeignet. Die Turnhalle ist teilweise in den Hang gebaut. Das begrünte Dach dient als vielfältig nutzbare Freifläche.

Auf der Ebene der bestehenden Schulanlage steht der kleinere Neubau, der als Empfangsgebäude dient. Darin ist direkt neben dem Haupteingang auf einer Fläche von 166 m2 die Tagesschule untergebracht. Der Raum lässt sich für verschiedene Nutzungen unterteilen. Die Schüler*innen können hier etwa ihr Mittagessen einnehmen, Hausaufgaben erledigen oder sich ausruhen. Eine kleine Kochnische und eine Schöpfstrasse ermöglichen es, Mahlzeiten anzubieten.

Im 2. Vollgeschoss des Empfangsgebäudes befinden sich die Büros der Schulleitung, das Sekretariat sowie die Lehrerzimmer und im Dachgeschoss die Schul- und Gemeindebibliothek. Diese ist mit dem Lift und über die Treppenanlage sehr gut zugänglich. Als öffentliche Einrichtungen sind sowohl Bibliothek wie die Tagesschule von der oberen Ebene her bestens erreichbar, was für das ganze Dorf einen Mehrwert darstellt. Mit ca. 200 m2 ist die neue Bibliothek grösser als die bestehende.

Auf der unteren Ebene liegt das 50 Meter lange Hauptgebäude, der eigentliche Klassentrakt: In den Obergeschossen befinden sich auf der Südseite jeweils vier Klassenzimmer und drei Gruppenräume und auf der Nordseite die Technik- und Materialräume sowie die Nasszellen. Die zehn Klassenzimmer weisen je eine Fläche von ca. 66 m2 und eine Höhe von 3 m auf. Die sieben Gruppenräume sind je ca. 32 m2 gross und auf Wunsche der Lehrer*innen offen oder geschlossen gestaltet. Der Korridor ist so gestaltet, dass es dort neben Garderoben auch Platz für Sitz- oder Arbeitsplätze hat; dies ermöglicht es, verschiedene Lernformen umzusetzen.

Im Erdgeschoss des Hauptgebäudes sind zwei Kindergärten mit je über 110 m2 Nutzfläche untergebracht sowie zwei weitere Klassenräume und ein Gruppenraum. Die Kindergartenkinder haben einen eigenen, seitlich angelegten Eingang. Nebst einem grosszügig angelegten gemeinsamen Spielbereich verfügen beide Kindergärten über je einen Aussenraum von ca. 190 m2, zu welchem sie einen direkten Zugang haben. Eine allfällige dritte Kindergartenklasse kann bei Bedarf im heute bestehenden Kindergarten untergebracht werden.

Die Turnhalle schliesst im Untergeschoss an den Klassentrakt an und ist teilweise in den Hang gebaut. Das begrünte Dach der Halle geht nahtlos in die Umgebung über und dient als vielfältig nutzbare Freifläche. Die Turnhalle ist leicht grösser als im ersten Campus-Projekt; dazu gehören eine Bühne, Garderoben, ein Geräteraum (78 m2), Räume für die Lehrpersonen und WC-Anlagen. Insgesamt bietet sie Platz für 300 Personen. Der Zugang erfolgt über das zentrale Treppenhaus oder mit dem Lift. Die Halle hat zwei Eingänge.

Eine grosszügige Treppenanlage mit Sitzstufen, der neue Aussensportplatz, die angrenzende Wiese sowie die begrünte Terrasse auf dem Turnhallendach stehen für die Pausen und den Unterricht im Freien zur Verfügung. Die Aussenräume der Kindergärten sind vom restlichen Schulgelände getrennt. Die Schulhausumgebung wird mit einheimischen Pflanzen vielfältig und erlebnisreich gestaltet. Zahlreiche neue Gehölze bieten im Sommer langfristig schattige Aufenthaltsbereiche.

Sichtschutzwände, ein Velounterstand und ein Geräteraum gewährleisten über die ganze Länge des Hartplatzes eine wirksame Abschirmung zu den Einfamilienhäusern. Auch beim Sportplatz mit den Parkplätzen ist eine Sichtschutzwand vorgesehen.

Die neue Turnhalle bietet deutlich mehr Platz als die beiden Hallen in Schüpbach und Signau. Sie ist leicht grösser als im ersten Campus-Projekt, wird durch Oberlichter mit Tageslicht versorgt und verfügt über eine energiesparende Be- und Entlüftung. Die Turnhalle beinhaltet eine 6m tiefe, abtrennbare Bühne. Diese ist von grosser Bedeutung für die jährlich wiederkehrenden Vereinsanlässe, nachdem in Signau diverse Säle in Restaurants weggefallen sind.

Der Bühnenraum verfügt über einen separaten Zugang und ist für die Durchführung unterschiedlicher Veranstaltungen konzipiert. Dank der geplanten «Anrichteküche» können in der Halle einfache Menüs serviert werden. Ein weiterer Raum wird so vorbereitet, dass dort künftig eine Küche eingebaut werden kann. Sollte die Nachfrage nach dem Tagesschulangebot steigen, könnte so auch vor Ort gekocht werden. Die Anlieferung der Speisen und Getränke erfolgt von der Schulhausstrasse her und von dort via Haupteingang und Lift ins Untergeschoss.

Insgesamt bietet die Turnhalle Platz für 300 Personen (Sitzplätze). Der Zugang erfolgt über das zentrale Treppenhaus oder mit dem Lift. Ein seitlich gelegenes Treppenhaus dient vorwiegend als Notausgang. Die Halle selbst hat zwei Eingänge. Auch der neue Hartplatz neben der Turnhalle lässt sich durch die Vereine vielfältig nutzen. Weiter ist geplant, den bestehenden Sportplatz zu sanieren; das Sanierungsprojekt soll 2025 aufgegleist werden.

Der Gemeinderat geht davon aus, dass die Dauernutzungen und Anlässe, die bisher in der Turnhalle Schüpbach stattfanden, in die neue Turnhalle in Signau umziehen werden. Demnach wird die Turnhalle von Montag bis Freitag jeweils bis 22 Uhr für Trainings etc. genutzt. Für den neuen Hartplatz werden voraussichtlich die gleichen Benützungszeiten gelten, wobei der Platz über keine Beleuchtung verfügt. Nach 22 Uhr ist jegliche Ruhestörung zu unterlassen. 

An Wochenenden ist davon auszugehen, dass in der neuen Turnhalle die Lottos und Unterhaltungsabende stattfinden, die bisher in der Turnhalle Schüpbach über die Bühne gingen; 2024 fanden dort an fünf Wochenenden solche Anlässe statt. Möglicherweise kommen bisher «auswärts» durchgeführte Anlässe von Vereinen der Gemeinde dazu; hier ist von vier bis zehn Anlässen pro Jahr auszugehen. Für Theatervorführungen braucht es eine separate Regelung. Privat organisierte Grossanlässe wie z.B. Bar- und Pub-Festivals sind in den Turnhallen der Gemeinde nicht erlaubt.

Die Erschliessung des Campus erfolgt über die Schulhausstrasse. Die Parkplätze befinden sich am Sängeliweg, unterhalb des Hartplatzes sowie z.T. des Klassentrakts und die Veloabstellplätze beim Hartplatz und beim bestehenden Schulhaus. Insgesamt gibt es künftig 46 Parkplätze inkl. bereits bestehender Parkplätze sowie ca. 100 Veloabstellplätze.

Die Autos fahren im unteren Bereich des Areals über eine neue Rampe – losgelöst von der Rampe der Zivilschutzanlage – zu den Parkplätzen beim Sportplatz. Der Fuss- und Veloverkehr wird entlang der Stützmauer auf die Ebene des Sportplatzes geführt. Die Wegverbindungen zwischen der Alterssiedlung und den bestehenden Schulgebäuden bleiben bestehen, werden teilweise ergänzt und hindernisfrei gestaltet, wo das noch nicht der Fall ist.

Für grössere Anlässe ist jeweils ein Verkehrskonzept (z. B. Absperrung von Zufahrten, Beschilderung der Parkplätze, Verkehrs- und Auskunftsdienst) erforderlich; dieses stellt sicher, dass kein sinnloser Suchverkehr entsteht. Bei solchen Anlässen dient der Pausenplatz bei den bestehenden Schulhäusern als Notparkplatz. Überdies können die Parkplätze beim Bahnhof, bei der Gemeindeverwaltung und beim Friedhof benutzt werden. Ferner ist beim Zeughaus eine grosse asphaltierte Fläche vorhanden, die sich in Absprache mit der Armasuisse ebenfalls zum Parkieren verwenden lässt.

Für die Schülerinnen und Schüler aus den Aussenbezirken und den anderen Gemeinden ist der Transport nach Signau sichergestellt: in den Partnergemeinden durch den ÖV und in Signau dank voraussichtlich drei Schulbussen. Auf dem Schulareal gilt ein Verbot für Elterntaxis, was viel zur Verkehrssicherheit beiträgt. Es gibt im Dorf genügend Flächen, wo Autos für einen kurzen Moment halten können.

Möchten Sie Cookies zulassen?

Um unsere Website für Sie optimal zu gestalten und fortlaufend verbessern zu können, verwenden wir Cookies. Weitere Infos zu Cookies und Datenschutz, finden Sie hier.